7 objects

Продажа коробки дома в Брестском районе, Высоковск 213103
Продажа коробки дома в Брестском районе, Высоковск 213103 Брестская область, Брестский р-н, д. Скоки
261 144 Br
2 073 Br per m²
126 m²

Коробка жилого дома в Брестском р-не. 2020 г. п. 1 этаж. Общ. СНБ - 126,0 кв. м, общ. - 126,0 кв. м, жил. - 75,2 кв. м, кух. - 12,6 кв. м. 4 комнаты, высота потолка - 2,80 м. Стены: материал - газосиликатный блок. Кровля: металлочерепица. Фундамент: ленточный монолитный; материал - бетон. Коммуникации: газ - централизованный (по улице, взносы не оплачены), водоснабжение - скважина и гидрофор, электричество - централизованное, канализация - автономная. Хоз. постройки: гостевой дом. Участок - 0,1422 га. Всегда возможен торг - звоните! Готовы помочь для покупки этого объекта, Здесь можно - сегодня более 3000

Продажа жилого дома в Брестском районе, Высоковско 240654
Продажа жилого дома в Брестском районе, Высоковско 240654 Брестская область, Брестский р-н, д. Скоки
348 670 Br
2 858 Br per m²
122 m²

Жилой дом в Брестском р-не. 2015 г. п. 1 этаж, мансарда. Общ. СНБ - 229,2 кв. м, общ. - 122,3 кв. м, жил. - 64,8 кв. м, кух. - 19,2 кв. м. 4 комнаты. Стены: материал - газосиликатный блок; отделка фасада - керамический (глиняный) кирпич. Кровля: натуральная черепица. Фундамент: ленточный сборный; материал - бетон. Коммуникации: отопление - газовый котел, газ - централизованный (в доме), водоснабжение - централизованный водопровод, электричество - централизованное, канализация - централизованная. Хоз. постройки: гараж, сарай. Участок - 0,1005 га. Всегда возможен торг - звоните! Готовы помочь для покупки этого объекта, Здесь можно - сегодня более 3000

Жилой дом, д. Скоки - 340426
Жилой дом, д. Скоки - 340426 Брестская область, Брестский р-н, д. Скоки
244 885 Br
1 622 Br per m²
151 m²

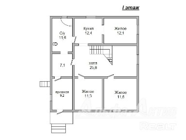
Жилой дом, Брестский р-н, д. Скоки, 2015 г. п., сборно-щитовой, 151,1/55,2/12,4 кв. м., с/у совмещенный, Дом сборно-щитовой дом, обложен кирпичем, крыша - шифер. На первом этаже 3-и жилые комнаты, кухня столовая, просторный санузел 11,6 м2, на мансардном этаже комната 20,2 м2, холл, есть возможность обустроить еще одну комнату 20м2. Электричество, газ, канализация- центральные, отопление- газовое. Большой участок 19,68 соток правильной формы, есть гараж и хозяйственные постройки. Район с развитой инфраструктурой, рядом находятся: продовольственный магазин, аптека, школа, детский садик. Хорошая транспортная развязка, в шаговой доступности остановка общественного транспорта. Ряом лес, река Лесная. Лот 340426 Договор № 426/1 от 24.07.2024, ЗАО «Альфа-Актив», УНП 290426827, лицензия № 02240/92 от 29.12.2005 на право осуществления деятельности по оказанию юридических услуг (риэлтерские услуги)

Продажа коробки дома в Брестском районе, Высоковск 200881
Продажа коробки дома в Брестском районе, Высоковск 200881 Брестская область, Брестский р-н, д. Скоки
150 483 Br
1 265 Br per m²
119 m²

Коробка жилого дома в Брестском р-не. 2008 г. п. 1 этаж, мансарда, цокольный этаж. Общ. СНБ - 119,2 кв. м. 5 комнат, высота потолка - 2,70 м. Стены: материал - газосиликатный блок. Кровля: металлочерепица. Фундамент: ленточный сборный; материал - блок ФБС. Коммуникации: газ - централизованный (по улице, оплачен), водоснабжение - централизованный водопровод, электричество - централизованное, канализация - автономная. Хоз. постройки: баня. Участок - 0,1445 га. Всегда возможен торг - звоните! Готовы помочь для покупки этого объекта, Здесь можно - сегодня более 3000

Дом под отделку - 321292
Дом под отделку - 321292 Брестская область, Брестский р-н, д. Скоки
408 142 Br
2 293 Br per m²
178 m²

№ 321292 Приобретая данный объект, ПОКУПАТЕЛЬ не платит комиссию агентству. Дом с отделкой. Ближайший пригород г. Бреста. Кирпич / металлочерепица. Цоколь + 2 этажа. Общ. - 178.3 кв. м. жил. - 103,7 кв. м. 4 комнаты, кухня-гостиная. Коммуникации: электричество, отопление - газовое, водоснабжение - центральное, канализация - центральная. В стоимость объекта входит благоустройство двора (плитка. забор с откатными воротами. плиточное покрытие в зоне подъезда), которое будет выполнено в ближайшее время. А так же кухонный гарнитур. ХОЗ. ПОСТР: фундамент под хоз. блок. Участок - 0.1318 га. Лот 321292 Договор № 1292/1 от 11.07.2012, ЗАО «Альфа-Актив», УНП 290426827, лицензия № 02240/92 от 29.12.2005 на право осуществления деятельности по оказанию юридических услуг (риэлтерские услуги)

Коробка дома в ближайшем пригороде Бреста - 140037
Коробка дома в ближайшем пригороде Бреста - 140037 Брестская область, Брестский р-н, д. Скоки
151 263 Br
1 271 Br per m²
119 m²

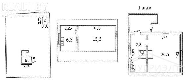
№ 140037 Коробка дома в ближайшем пригороде Бреста 119.2 м. кв., блок / металлочерепица /стеклопакеты, отдельный домик под баню или времянку, участок 0.1445 га. Возможен торг. Лот 140037. Договор № 37/1 от 31.01.2014, ООО «Бугриэлт», УНП 291139313, лицензия № 02240/245 от 05.02.2013 на право осуществления деятельности по оказанию юридических услуг (риэлтерские услуги)

Садовый домик в Брестском районе - 550532
Садовый домик в Брестском районе - 550532 Брестская область, Брестский р-н, д. Скоки
75 956 Br
1 519 Br per m²
50 m²

№ 550532 Одноэтажный садовый домик в северном направлении Брестского района, садоводческое товарищество «Факел». Общая площадь - 50,2 м2. Стены - газосиликатный блок, оштукатурен; кровля - шифер; окна - с деревянными рамами. Идеально подходит для отдыха, используется для ведения садоводства. Коммуникации: электричество, отопление - газ по улице, водоснабжение - скважина. Дополнительно имеется: сарай. Участок площадью 5 соток правильной прямоугольной формы с насаждениями из деревьев и кустарников. Ограждение по периметру. Подъезд - асфальт. Хорошее транспортное сообщение, ходит маршрутка №20. Рядом лес. Не упустите этот вариант. Договор № 532/1 от 20.11.2015, ООО «Бугриэлт», УНП 291139313, лицензия № 02240/245 от 05.02.2013 на право осуществления деятельности по оказанию юридических услуг (риэлтерские услуги)

Open the map Map