20 times more ads from owners

We collect ads from the largest portals

We distinguish the realtor from the owner by the phone number

Show how the price has changed

Remove duplicate ads

Продается двухкомнатная квартира в самом центре Гомеля

г. Гомель, ул. Интернациональная, 9
photo - Продается двухкомнатная квартира в самом центре Гомеля photo - Продается двухкомнатная квартира в самом центре Гомеля
  • Full size
  • Search for similar
photo - Продается двухкомнатная квартира в самом центре Гомеля photo - Продается двухкомнатная квартира в самом центре Гомеля

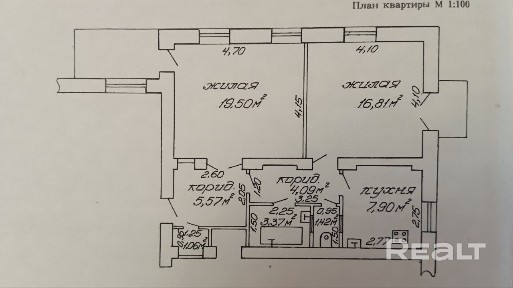
Продается двухкомнатная квартира в историческом центре г. Гомеля. Квартира без ремонта, несущие перегородки отсутствует, что позволяет сделать свой новый ремонт, о котором Вы давно мечтали. Очень выгодная локация вблизи Парка с дворцом Румянцевых-Паскевичей и Петропавловским собором, что обеспечивает идеальное сочетание удобства городской жизни и спокойствия природы. Преимущества:

Location on the map, useful places and routes

Select route

Nearby objects

г. Гомель, ул. Интернациональная, 22
Add to favorites Купить 2-комнатную квартиру, г. Гомель, ул. Интернациональная, 22
  • 175 284 Br
  • 59 m²
г. Гомель, ул. Интернациональная, 22
г. Гомель, ул. Интернациональная, 22/0
Add to favorites Купить 2-комнатную квартиру, г. Гомель, ул. Интернациональная, 22/0
  • 173 742 Br
  • 59 m²
г. Гомель, ул. Интернациональная, 22/0
г. Гомель, ул. Интернациональная, 9
Add to favorites 2-х комнатная квартира Гоиель, Интернациональная, 9
  • 130 307 Br
  • 37 m²
г. Гомель, ул. Интернациональная, 9