414 objects

4-комнатная квартира 74 кв. м по ул. Терешковой
4-комнатная квартира 74 кв. м по ул. Терешковой г. Витебск, ул. Терешковой, 8
131 151 Br
1 772 Br per m²
4-room 74 m² 1/5 fl

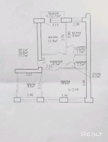
Продаётся просторная квартира площадью 74 кв. м. по ул. Терешковой. Комнаты расположены на две стороны (восток - запад). Установлена качественная входная дверь. В остальном требуется ремонт. Квартира подходит для любой перепланировки, несущих стен нет. Вы можете воплотить в жизнь свой индивидуальный проект и сделать современный ремонт на свой вкус. Это гораздо выгоднее, чем переплачивать за чужой, который, как правило, устраивает не полностью. При необходимости порекомендуем проверенных высококвалифицированных специалистов по ремонту. Дом расположен в хорошем месте. Рядом с домом - школа, детский сад, магазин "Маяк", ТЦ "Олимп". В шаговой доступности - строительный рынок, спортивный комплекс с бассейном, ТЦ "Эвиком", гимназия №3, ВГТУ и многочисленные магазины. Удобное транспортное сообщение. Остановки общественного транспорта - в 2-5 минутах от дома. Квартира для большой семьи, а также может рассматриваться как объект для инвестирования под вывод из жилого фонда. Соседи доброжелательные. Чистый уютный двор с детской площадкой. Квартира свободная и готова к быстрой сделке. Никто не зарегистрирован. Цена - на нижней границе рынка. Рассмотрим продажу в том числе с привлечением кредитных средств, материнского капитала, а также через ЖК "Жилищный баланс". Покупка квартиры через агентство недвижимости - гарантия безопасности и юридической чистоты сделки! Оперативный показ! Ждём ваших звонков! Договор 159/1 от 11.10.2025г ООО "Недвижимость Витебска плюс", УНП 391935731, Лицензия Министерства юстиции Республики Беларусь 02240/462 от 21.06.2023г. (бессрочная) на право осуществления деятельности по оказанию риэлтерских услуг.

Купить 3-комнатную квартиру, г. Витебск, ул. Бровки, 9/3
Купить 3-комнатную квартиру, г. Витебск, ул. Бровки, 9/3 г. Витебск, ул. Бровки, 9/3
145 765 Br
2 429 Br per m²
3-room 60 m² 6/9 fl

г. Витебск, ул. Бровки, 9/3

В продаже 2-х комнатная квартира по Гагарина
В продаже 2-х комнатная квартира по Гагарина г. Витебск, ул. Гагарина, 162/1
119 184 Br
2 649 Br per m²
2-room 45 m² 3/5 fl

В продаже 2-х комнатная квартира по Гагарина, микрорайон Журжево, на 3- ем этаже пятиэтажного дома. Улучшенная планировка, с отдельными комнатами и большой кухней ( более 9 м. кв. ), раздельный санузел, балкон, есть свой подвал. Квартира не испорчена чужим ремонтом, поэтому у нового владельца есть возможность сделать ремонт на свой вкус и цвет. Добрые соседи, отличное транспортное сообщение. Подробнее по телефону. Договор №251/19 от 08.11.2025 ОДО «Юриэлт», УНП 101214439 Лицензия Министерства юстиции Республики Беларусь № 02240/8 от 17.02.2005 (бессрочная) на право осуществления деятельности по оказанию юридических услуг-риэлтерских услуг.

1-комнатная квартира в блокированном доме рядом с р. Витьба
1-комнатная квартира в блокированном доме рядом с р. Витьба г. Витебск, ул. Энтузиастов
47 674 Br
2 649 Br per m²
1-room 18 m² 1/1 fl

Устали ездить на дачу? Квартира и дача на одном участке! В продаже 1-комнатная квартира в частном секторе октябрьского района г. Витебска. Расположена в блокированном 1-этажном кирпичном доме на 3 хозяев. Вход индивидуальный. В доме есть газ, вода (холодная и горячая), душевая кабина. Центральная канализация. Окна ПВХ. Высота до потолка 2,95м. В пользовании земельный участок, есть сарай, парник, фруктовые деревья и ягодный кустарник. Объект интересен локацией: в непосредственной близости к р. Витьба (парковая зона отдыха "Витьба"). Подъезд к дому всесезонный, дорога чистится, общественный транспорт, 7 минут до Смоленского рынка. Есть где поставить личный автомобиль. Дом и дача в центре города! Смотрите фото, звоните, если остались вопросы! договор №171/1 от 08.11.2025 на страхование и юр. сопровождение сделки! ООО ”Недвижимость Витебска плюс“ УНП 391935731. Лицензия 02240/462 от 21.07.2023 (бессрочная) на право осуществления деятельности по оказанию риэлтерских услуг.

Однокомнатная квартира по ул. Лазо, 10/1.
Однокомнатная квартира по ул. Лазо, 10/1. г. Витебск, ул. Лазо, 10/1
78 363 Br
2 799 Br per m²
1-room 28 m² 3/5 fl

Продается однокомнатная квартира по адресу: ул. Лазо, 10/1. Квартира расположена на 3 этаже 5 -этажного кирпичного дома 1980г. п. Общая площадь - 28,02 кв. м., жилая - 16,46 кв. м., кухня - 5,46 кв. м. Есть балкон. Санузел совмещенный. Квартира требует ремонта. Удобное расположение, развитая инфраструктура: магазины, школы, детские сады, хорошее транспортное сообщение. Реальному покупателю торг. Звоните для получения дополнительной информации или организации просмотра! Договор № 226/4 от 10.11.2025г. ООО «Агентство недвижимости УЮТ». УНП 391351540. Лицензия № 02240/199 от 15.10.2009 на право осуществления деятельности по оказанию риэлтерских услуг.

3-х комн. квартира пл. 86 м. кв. с ШИКАРНОЙ планировкой
3-х комн. квартира пл. 86 м. кв. с ШИКАРНОЙ планировкой г. Витебск, ул. Маркса, 49/А
184 605 Br
2 147 Br per m²
3-room 86 m² 9/9 fl

В продаже 3-х комнатная квартира с шикарной планировкой в экологически чистом районе города. Пл. 86,85/53,16/15,45 м кв. Квартира с хорошим ремонтом, расположена на 9-м этаже 9-ти этажного дома 2001 года постройки (есть высокий технический этаж). Окна ПВХ, полы ламинированные, новые межкомнатные двери - эко шпон, входная металлическая дверь, балкон застеклён - раздвижная система, санузел раздельный - плитка. Продажа частично с мебелью. Есть гардеробная. Закрытый тамбур на две квартиры. Имеется оборудованный подвал. Во дворе детская площадка. Дом расположен в тихом зелёном дворе, вдали от проезжей части. Вся инфраструктура рядом: детские сады, школа, Евроопт, аптека, парк, ФОК Локомотив с бассейном и сауной, стадион, ж/д вокзал, остановка общественного транспорта. Возможен обмен на однокомнатную квартиру новой панировки с доплатой.

Купить 1-комнатную квартиру, г. Витебск, ул. Чкалова, 30/5
Купить 1-комнатную квартиру, г. Витебск, ул. Чкалова, 30/5 г. Витебск, ул. Чкалова, 30/5
101 235 Br
2 664 Br per m²
1-room 38 m² 3/5 fl

г. Витебск, ул. Чкалова, 30/5

Купить 2-комнатную квартиру, г. Витебск, ул. Богатырева, 32/2
Купить 2-комнатную квартиру, г. Витебск, ул. Богатырева, 32/2 г. Витебск, ул. Богатырева, 32/2
208 425 Br
3 417 Br per m²
2-room 61 m² 10/10 fl

г. Витебск, ул. Богатырева, 32/2

Трехкомнатная квартира в тихом спокойном районе с прекрасным видом
Трехкомнатная квартира в тихом спокойном районе с прекрасным видом г. Витебск, ул. Терешковой, 26/5
187 583 Br
2 759 Br per m²
3-room 68 m² 8/10 fl

Хочешь квартиру большей площади? Чтобы у каждого была своя комната. Мне есть, что тебе предложить. Трехкомнатная квартира в тихом спокойном районе с прекрасным видом. Находится квартира на восьмом этаже из десяти. Общей площадью 68.27м2, жилая 41.79м2, кухня 8.06м2. Удачная планировка квартиры на разные стороны. Все комнаты изолированные. Два балкона застеклены. Год постройки 1988. Стяжка есть частично в коридоре, а также на кухне, ванной и санузеле. Трубы новые, кроме стояка в санузеле, там частично. Все окна ПВХ, пол ламинат. В стоимость квартиры входит практически вся мебель кроме техники. Рядом с домом находится детский N104. Взрослая поликлиника N1,торговый центр Эвиком, множество других магазинов. Транспортное сообщение отличное. Быстрая продажа без встречного варианта. Приходи, смотри, покупай. По всем интересующим вопросам звоните. Договор 250/19 от 06.11.2025 ОДО «Юриэлт», УНП 101214439 Лицензия Министерства юстиции Республики Беларусь 02240/8 от 17.02.2005 (бессрочная) на право осуществления деятельности по оказанию юридических услуг-риэлтерских услуг

Трехкомнатная в отличном состоянии.
Трехкомнатная в отличном состоянии. г. Витебск, пер. Стахановский, 8
122 673 Br
2 191 Br per m²
3-room 56 m² 2/5 fl

В продаже прекрасная и уютная трехкомнатная квартира в тихом зелёном районе города, района ДСК. Квартира расположена на удобном 2-м этаже 5 этажного панельного дома ( дом после капитального ремонта). Это идеальное предложение для тех, кто ценит покой, уют и развитую инфраструктуру. В нескольких минутах ходьбы набережная Западной Двины, родник и парк. Район подходит для прогулок, пробежек и отдыха на свежем воздухе. Подойдёт для семьи с детьми. Прямо из окон открывается вид на ухоженный детский сад. В шаговой доступности две школы и четыре детских сада. Рядом с домом есть всё для комфортной жизни: магазины, пункты выдачи заказов. В доме проживают тихие и спокойные соседи. Удобная транспортная развязка: Рядом находится остановка общественного транспорта - легко добраться в любую точку города. Возле дома всегда есть достаточное количество свободных парковочных мест. О квартире: В квартире 3 жилые комнаты, одна из них проходная. Выполнен качественный ремонт. Выровнены стены, на полу по всей квартире ламинат. Окна ПВХ. Санузел совмещённый. Вся мебель и предметы интерьера остаются по договорённости. Балкон новый, сделанный пол года назад, стоят стеклопакеты В прихожей установлен вместительный шкаф купе. Кухня и варочная панель остаются. Заезжай и живи! Звоните, организуем просмотр, чтобы оценить это предложение лично. Договор 196/1 от 05.11.2025г., ООО « Культурная столица», УНП 391825484, Лицензия 02240/380 от 15.08.2019-бессрочная, Минюст, на право осуществления деятельности по оказанию юридических услуг - риэлтерские услуги.

Купить 2-комнатную квартиру, г. Витебск, ул. Чкалова, 25/4
Купить 2-комнатную квартиру, г. Витебск, ул. Чкалова, 25/4 г. Витебск, ул. Чкалова, 25/4
104 213 Br
2 084 Br per m²
2-room 50 m² 2/9 fl

г. Витебск, ул. Чкалова, 25/4

Трехкомнатная квартира по ул. Суворова, 42.
Трехкомнатная квартира по ул. Суворова, 42. г. Витебск, ул. Суворова, 42
157 808 Br
2 769 Br per m²
3-room 57 m² 5/5 fl

Продается трехкомнатная квартира по адресу: ул. Суворова, 42. Квартира расположена на 5 этаже 5 -этажного кирпичного дома 1967г. п. Общая площадь - 57,5 кв. м., жилая - 40,1 кв. м., кухня - 6,6 кв. м. Есть балкон. Санузел раздельный. Квартира в жилом состоянии, ремонта не было давно. Комнаты в квартире расположены на разные стороны дома, ориентированы - восток-запад. Квартира расположена в историческом центре города, с хорошо развитой инфраструктурой: несколько парков, набережная Западной Двины, магазины, школы, детские сады, Смоленский рынок, хорошее транспортное сообщение. Звоните для получения дополнительной информации или организации просмотра! Договор № 224/4 от 05.11.2025г. ООО «Агентство недвижимости УЮТ». УНП 391351540. Лицензия № 02240/199 от 15.10.2009 на право осуществления деятельности по оказанию риэлтерских услуг.

3-комнатная квартира в центре Витебска по улице Кирова
3-комнатная квартира в центре Витебска по улице Кирова г. Витебск, ул. Кирова, 2
237 992 Br
3 260 Br per m²
3-room 73 m² 5/5 fl

В продаже отличная 3-комнатная квартира в кирпичном доме где будет уютно всей семье. Квартира с хорошим ремонтом в историческом центре города вблизи от вокзалов и р. Западная Двина по улице Кирова, 2. Общий метраж по СНБ : 73.9/50, 1960 года постройки. Квартира расположена на 5-м этаже (преимуществом 5-го этажа является то, что сверху у вас всегда будет тихо и спокойно, есть тех. этаж). Уже сразу после открытия входной двери квартира встречает атмосферой гармонии и уюта благодаря удачно подобранной цветовой гамме. Освещение поражает своим разнообразием, балансом и возможностью создать нужное настроение. На стенах-импортные обои, на полу-плитка паркетная доска, ламинат. Санузел выполнен с использованием плитки. Продажа с кухонным гарнитуром (газовой варочной панелью, духовым шкафом, вытяжкой, посудомойкой), в детской комнате остаётся встроенная мебель, в прихожей и комнатах раздвижной шкаф-купе, в гостиной кожаный диван, 2 кондиционера. Все окна ПВХ. Входные металлические двери, установлен видеодомофон. Вам осталось позвонить, приехать и убедиться воочию, что по соотношению цена/качество-это отличное предложение. Если Витебск начинается с вокзала, то улица Кирова - это парадный вход в наш город. Она будет первой улицей, которую вы увидите, выйдя из здания Железнодорожного вокзала, и с нее может начаться ваше знакомство с Северной столицей. Кстати, дом признан историческим памятником архитектуры! Предлагаем комплексную услугу : помощь в продаже вашей недвижимости и приобретении этой квартиры. Договор 170/1 от 04.11.2025. ООО “Недвижимость Витебска плюс ” УНП 391935731.Лицензия 02240/462 от 21.07.2023., на право осуществления деятельности по оказанию риэлторских услуг.

Продается 2-комнатная квартира, пр-т Фрунзе г. Витебск, просп. Фрунзе
76 752 Br
1 505 Br per m²
2-room 51 m² 5/5 fl

5/5 кирпичного дома, 51,5/31,4/7,4 кв. м., с/у раздельный, застекленная лоджия, натяжной потолок, комнаты на разные стороны, рядом детский сад, магазин, остановка. Прямая продажа. Срочно. (договор № 117/2)

Купить 3-комнатную квартиру, г. Витебск, Медицинская, 1
Купить 3-комнатную квартиру, г. Витебск, Медицинская, 1 г. Витебск
255 841 Br
3 082 Br per m²
3-room 83 m² 8/10 fl

г. Витебск

Продается двухкомнатная квартира, ул. Смоленская
Продается двухкомнатная квартира, ул. Смоленская г. Витебск, ул. Смоленская
187 419 Br
3 905 Br per m²
2-room 48 m² 4/5 fl

Продается двухкомнатная квартира по адресу: ул. Смоленская. Квартира расположена на 4 этаже 5-этажного кирпичного дома, построенного в 1978 году. Общая площадь квартиры составляет 48,18 кв. м., жилая - 29,64 кв. м., кухня - 7,08 кв. м. В квартире раздельный санузел. Застекленный балкон. Квартира в отличном состоянии - окна ПВХ, натяжные потолки, новая сантехника, полы - ламинат. Комнаты изолированные. Остается мебель и бытовая техника, что позволит сразу въехать и начать комфортное проживание. Район отличается развитой инфраструктурой: вблизи расположены две школы, детские сады, магазины, Центральный рынок. В шаговой доступности площадь Победы. Для получения дополнительной информации и организации просмотра просьба обращаться по телефону.

В продаже полдома по ул. Велижской в г. Витебске
В продаже полдома по ул. Велижской в г. Витебске г. Витебск, ул. Велижская
74 373 Br
1 730 Br per m²
2-room 43 m² 1/1 fl

В продаже полдома по ул. Велижской в г. Витебске Отличный вариант альтернативы однокомнатной квартире. Общая площадь 43,1 М2, две жилые изолированные комнаты 8 и 17,5 М2. Отдельная кухня 10.3 М2. Внутри полдома совмещённый туалет и ванна. Местная канализация, газовое отопление. Дом бревенчатый, во второй половине длительное время никто не живёт. Участок половины дома около 4,2 сотки, ухоженная земля. Договор № 238/19 от 23.10.2025 ОДО «Юриэлт», УНП 101214439 Лицензия Министерства юстиции Республики Беларусь № 02240/8 от 17.02.2005 (бессрочная) на право осуществления деятельности по оказанию юридических услуг-риэлтерских услуг.

В продаже однокомнатная квартира
В продаже однокомнатная квартира г. Витебск, ул. Горького, 92
95 197 Br
2 573 Br per m²
1-room 37 m² 9/9 fl

В продаже однокомнатная квартира. Общей площадью 37.29м2, жилая 18.42 м2, кухня 7.89м2. С нишей. Девятый этаж из девяти. Есть технический этаж. Прекрасный вид из окна. Квартира под ремонт. Всё находится рядом. Через дорогу ясли-сад, школа, поликлиника взрослая и детская. Транспортное сообщение отличное. Один собственник. Быстрая продажа. По всем интересующим вопросам звоните. Договор № 249/19 от 04.11.2025 ОДО «Юриэлт», УНП 101214439 Лицензия Министерства юстиции Республики Беларусь № 02240/8 от 17.02.2005 (бессрочная) на право осуществления деятельности по оказанию юридических услуг-риэлтерских услуг.

2-х комнатная на Фрунзе
2-х комнатная на Фрунзе г. Витебск, просп. Фрунзе, 47/а
148 870 Br
3 631 Br per m²
2-room 41 m² 1/5 fl

Продается 2-х комнатная квартира по проспекту Фрунзе 47А., расположена на 1-м этаже. Дом находится в центре города во дворах, вдали от шумных улиц. В шаговой доступности детские сады, школа, университеты, хорошее транспортное сообщение. В квартире сделан капитальный ремонт, окна ПВХ, ламинат на стяжке, заменены двери, душевая кабина, проводка заменена. Продается с мебелью и бытовой техникой. Звоните, интересуйтесь! ООО ”Недвижимость Витебска плюс“ УНП 391935731. Лицензия 02240/462 от 21.07.2023 (бессрочная) на право осуществления деятельности по оказанию риэлтерских услуг.

В продаже 2-комнатная квартира на восьмом этаже
В продаже 2-комнатная квартира на восьмом этаже г. Витебск, ул. Титова, 14
147 381 Br
3 008 Br per m²
2-room 49 m² 8/9 fl

В продаже 2-комнатная квартира на восьмом этаже девятиэтажного кирпичного дома. В шаговой доступности школы, детские сады, поликлиника, магазины, Полоцкий рынок, железнодорожный вокзал, банки, аптеки и остановки общественного транспорта. Достаточное количество парковочных мест во дворе, детская площадка. Аккуратный подъезд, хорошие соседи. Есть всё необходимое для комфортного проживания.

Open the map Map